خطاهای رایج در طراحی و اجرای سازه که کارفرما باید مراقب آن باشد

,
نقشه معماری و مدل سازه برای شروع طراحی
0
(0)

مقدمه

یکی از بزرگ‌ترین اشتباهات کارفرماها هنگام ساخت ساختمان این است که تصور می‌کنند تمام مسئولیت طراحی و اجرای سازه بر عهده مهندسان است. در حالی‌که آگاهی عمومی کارفرما از خطاهای رایج می‌تواند جلوی هزینه‌های سنگین و مشکلات ایمنی را بگیرد.
در این مقاله با خطاهای مهمی که معمولاً در طراحی و اجرای سازه رخ می‌دهد آشنا می‌شوید تا بتوانید پروژه خود را با اطمینان بیشتری پیش ببرید.


۱. عدم هماهنگی بین معماری و سازه

یکی از شایع‌ترین خطاها زمانی رخ می‌دهد که نقشه‌های معماری و سازه با هم تطابق ندارند.
نتیجه؟

  • ستون‌ها در مکان نامناسب قرار می‌گیرند.
  • بازشوها (مثل در و پنجره) با تیرها تداخل دارند.
  • تغییرات ناگهانی در هنگام اجرا باعث دوباره‌کاری و افزایش هزینه می‌شود.

💡 راه‌حل:
پیش از شروع طراحی، معمار و مهندس سازه باید با هم هماهنگ باشند و نقشه‌ها به‌صورت هم‌زمان پیش بروند.

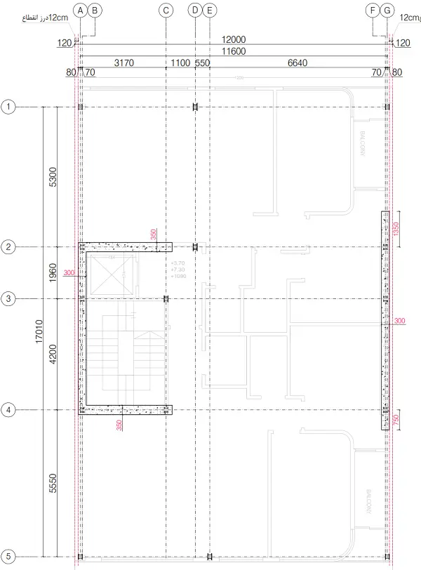
مثلا در تصویر زیر ستونی در وسط پذیرایی بوده که توسط طراح معماری پیشبینی نشده است. در صورت حذف این ستون طراح سازه باید از تیرورق با سایز بزرگی استفاده کند که باعث کاهش ارتفاع مفید سقف خواهد شد.

همچنین طراح سازه میتواند ستون‌های آکس ۳ را نیز حذف کند. همچنین ستون 2-D نیز میتواند حذف شود. حذف این ستون‌ها باعث افزایش سایز پل ها و تیرهای فرعی شده ولی در نهایت منجر به سبک سازی سازه می‌شود.

ستون وسط پذیرایی توسط طراح معمار پیشبینی نشده است.
ستون وسط پذیرایی توسط طراح معمار پیشبینی نشده است.

۲. انتخاب نادرست نوع سازه

گاهی کارفرما یا حتی پیمانکار بدون مشورت با طراح سازه، نوع اسکلت ساختمان را انتخاب می‌کند (بتنی یا فلزی). در نتیجه ممکن است:

  • سازه برای نوع کاربری مناسب نباشد.
  • هزینه‌ها بیش از حد افزایش یابد.
  • سرعت اجرا پایین بیاید یا استحکام کاهش یابد.

💡 نکته مهم:
انتخاب نوع سازه باید بر اساس محاسبات مهندسی، شرایط زمین و تعداد طبقات انجام شود، نه صرفاً سلیقه یا تجربه دیگران.

مثلا در تصویر زیر، طراح سازه میتوانست از دیواربرشی استفاده نکند. اگر از دیواربرشی استفاده نمی‌شد فضای پارکینگ بهتری ایجاد می‌شد. همانطور که می‌بینید فاصله بین دیواربرشی تا دیوار راهپله ۳۹۵ سانتیمتر داده شده که در این فضای کم یک خودرو پارک کرده و خودرو دیگر از کنار آن باید عبور کند.

در مطلب ضوابط پارکینگ شهرداری مشهد در مورد این موضوع بیشتر توضیح داده ایم.


۳. ضعف در طراحی فونداسیون (پی ساختمان)

فونداسیون، پایه‌ی اصلی ساختمان است و هرگونه خطا در طراحی یا اجرا می‌تواند باعث نشست، ترک یا حتی شکست سازه شود.
اشتباهات رایج عبارت‌اند از:

  • محاسبه نادرست ظرفیت باربری خاک
  • اجرای فونداسیون در عمق یا ابعاد نامناسب
  • بی‌توجهی به سطح آب زیرزمینی

💡 توصیه:
حتماً قبل از طراحی، آزمایش ژئوتکنیک انجام دهید تا مشخصات خاک دقیقاً تعیین شود.


۴. تغییر معماری بعد از طراحی سازه

یکی از مشکلات پرتکرار زمانی رخ می‌دهد که کارفرما پس از طراحی سازه تصمیم به تغییر در پلان یا نما می‌گیرد.
هر تغییر معماری ممکن است باعث نیاز به تغییر کامل نقشه‌های سازه‌ای شود.
در غیر این صورت، خطراتی مانند ضعف در تحمل بار، ایجاد ترک یا حتی ناپایداری کلی ساختمان وجود دارد.

💡 راه‌حل:
قبل از شروع طراحی سازه، پلان معماری را نهایی کنید و از تغییرات بعدی پرهیز کنید.


۵. استفاده از نقشه‌های تکراری بدون بررسی شرایط پروژه

بعضی پیمانکاران برای صرفه‌جویی در هزینه، از نقشه‌های سازه‌ای پروژه‌های قبلی استفاده می‌کنند.
این کار بسیار خطرناک است، زیرا:

  • شرایط خاک و اقلیم در هر پروژه متفاوت است.
  • نوع زمین، ارتفاع، باد و زلزله باید مخصوص هر موقعیت بررسی شود.

💡 نکته:
حتی اگر سازه مشابهی ساخته‌اید، باید طراحی جدیدی متناسب با شرایط همان زمین انجام شود.


۶. ضعف در کنترل کیفیت مصالح

مصالح نامرغوب یا فاقد استاندارد باعث کاهش مقاومت واقعی سازه می‌شود.
به‌ویژه در بتن، میلگرد و اتصالات فلزی، کنترل کیفیت حیاتی است.
💡 راه‌حل:

  • از کارگاه‌های بتن معتبر استفاده کنید.
  • گواهی استاندارد میلگردها را بررسی کنید.
  • از ناظر پروژه بخواهید نمونه‌گیری و آزمایش مقاومت را انجام دهد.

۷. اجرای نادرست جزئیات سازه‌ای

حتی اگر طراحی عالی باشد، اجرای نادرست می‌تواند همه‌چیز را خراب کند.
مشکلات رایج:

  • آرماتوربندی اشتباه
  • جوشکاری غیراستاندارد در سازه‌های فلزی
  • بتن‌ریزی در دمای نامناسب یا بدون ویبره کافی

💡 توصیه:
همیشه از مجریان دارای صلاحیت و ناظر باتجربه استفاده کنید.


۸. حذف ناظر سازه برای کاهش هزینه

بعضی کارفرماها برای صرفه‌جویی، نظارت سازه‌ای را حذف یا کم‌اهمیت می‌کنند.
اما نبود ناظر متخصص باعث می‌شود اشتباهات اجرایی تا زمان وقوع خسارت مشخص نشود.

💡 نکته کلیدی:
ناظر سازه، تضمین‌کننده کیفیت و ایمنی پروژه شماست؛ حذف او یعنی ریسک مستقیم برای سرمایه و جان شما.


نتیجه‌گیری

بخش زیادی از خسارات ساختمانی ناشی از بی‌توجهی به اصول طراحی و اجرا است.
آگاهی کارفرما از این خطاهای رایج، باعث می‌شود پروژه با اطمینان، دقت و صرفه‌جویی بیشتری پیش برود.

اگر قصد احداث ساختمان دارید، انتخاب مهندس سازه حرفه‌ای و نظارت دقیق در تمام مراحل، بهترین تضمین برای سرمایه شماست.

«برای بررسی رایگان نقشه‌ها و مشاوره در طراحی سازه پروژه خود، همین حالا با ما تماس بگیرید.»

مهندس علی زارع
مهندس علی زارع

این مطلب چقدر مفید بود؟

میانگین امتیاز 0 / 5. تعداد آرا 0

به این مطلب امتیاز دهید.

0 پاسخ

دیدگاه خود را ثبت کنید

تمایل دارید در گفتگوها شرکت کنید؟
در گفتگو ها شرکت کنید.

دیدگاهتان را بنویسید

نشانی ایمیل شما منتشر نخواهد شد. بخش‌های موردنیاز علامت‌گذاری شده‌اند *